Venerdì, 03 Febbraio 2023 13:20

IPSSAR Maffioli - Lavori supplementari per la realizzazione di laboratorio cucina e aule dell'IPSSAR "Maffioli " nell'ambito dell'intervento di adeguamento sismico mediante nuova costruzione della sede dell'I.S. Einaudi-Scarpa 1°-2°-3° stralcio

"Progetti in essere" del PNRR

Interventi di messa in sicurezza degli edifici scolastici finanziati con risorse nazionali e rientranti tra i c.d. “progetti in essere” del Piano nazionale di ripresa e resilienza, (Decreto nr. 51 del 07/03/2022 , nota Ministero dell’Istruzione nr. 12925 del 08/03/2022 e nota Ministero dell'Istruzione nr. 27102 del 10/08/2021)

Decreto del Ministero dell'Istruzione n. 217 del 15 luglio 2021 approvazione dei piani degli interventi per la manutenzione straordinaria e l'efficientamento energetico degli edifici scolastici di competenza di Province, Città metropolitane ed enti di decentramento regionale e di individuazione dei termini di aggiudicazione, nonché delle modalità di rendicontazione e di monitoraggio, ai sensi dell’articolo 1, commi 63 e 64, della legge 27 dicembre 2019, n. 160

IPSSAR Maffioli - Lavori supplementari per la realizzazione di laboratorio cucina e aule dell' IPSSAR "Maffioli " nell'ambito dell'intervento di adeguamento sismico mediante nuova costruzione della sede dell'I.S. Einaudi-Scarpa 1°-2°-3° stralcio

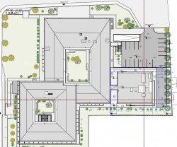
L’intervento si configura come l’ampliamento della nuova sede dell’istituto “Einaudi-Scarpa” e dell’IPSSEOA Maffioli, che prevede la realizzazione di 10 aule.

Il fabbricato di nuova realizzazione sorge nell’area adiacente al nuovo istituto Einaudi Scarpa , precisamente è allineato al volume a due piani ed è collegato allo stesso ad entrambi i piani, è previsto anche un collegamento in copertura per accessibilità agli impianti.
L’ampliamento, che si sviluppa su un volume di altezza uguale a quello adiacente, accoglie gli spazi relativi ai laboratori di sala e cucina dell’Istituto Maffioli al piano terra, mentre al piano primo sono presenti quattro aule per uso didattico. Al piano terra è previsto anche un locale tecnico e due blocchi spogliatoi con servizi igienici per gli studenti, invece al piano primo c'è un unico blocco bagni per studenti.

 

Scuola beneficiaria: IPSSAR Maffioli

Importo complessivo dell'intervento € 2.589.360,22

di cui importo di finanziamento PNRR € 1.393.602,22

INIZIO LAVORI  13/02/20233 - FINE LAVORI 29/06/2024

  • Provincia di Treviso: Provincia di Treviso
Letto 13540 volte Ultima modifica il Mercoledì, 01 Ottobre 2025 14:43

Logo della Provincia di Treviso

Logo della Provincia di Treviso

Indirizzo e recapiti

Via Cal di Breda, 116 - 31100 TREVISO

Tel +39 0422 6565
Fax +39 0422 656666
E-mail urp@provincia.treviso.it
PEC protocollo.provincia.treviso@pecveneto.it

Il Parco Sant'Artemio e il Parco della Storga

E’ consentito l’accesso al Parco del complesso di Sant’Artemio e al Parco della Storga nei giorni feriali dalle ore 7.00 alle ore 19.00 e nei giorni di sabato, domenica e festivi dalle ore 8.00 alle ore 18.00.

In ottemperanza alle norme in materia di contenimento e gestione dell'emergenza epidemiologica da COVID-2019 l’accesso del pubblico al Parco è condizionato al rigoroso rispetto della distanza di sicurezza interpersonale di un metro e del divieto di ogni forma di assembramento di persone; è richiesto l’utilizzo di mascherine o ogni altro idoneo dispositivo per la copertura di naso e bocca, nonché di guanti o gel o altra soluzione igienizzante.

© 2025 Provincia di Treviso